PUBLIC REAL ESTATE AUCTION EVENT
ONLINE ONLY BIDDING!!
Please bid early and often & understand the online only bidding begins to close on Wednesday, May 27, 2026 @ 12:00 PM NOON (Eastern).
Property Tours: Wednesday, May 6, Saturday, May 9 & Friday, May 15, 2026 from 12:00-1:00 pm (Feel free to bring your inspector/contractor). Please contact Sid Smyth for more information (434-955-0708)
- 4,125 +/- sf. commercial brick building on 1.25 +/- acres located in the Enterprise Zone of Lunenburg County, VA
- This prime commercial opportunity has high visibility and 240' +/- of frontage on Lea Rd.(Highway 40 West)
- Purpose-built and previously operated as a veterinary clinic, the layout is well-suited for immediate reuse featuring space for exam rooms, treatment areas, and administrative functions.
- The current owner specialized in equestrian care and utilized a fenced area for short-term holding and treatment.
- Notably, there is currently no other veterinary clinic in the county, creating a rare opportunity to serve an unmet need. Ideal for veterinarians looking to establish or expand with minimal reconfiguration.
- Additional land provides room for parking, storage, or future expansion.
- Serviced by all town utilities and high-speed internet.
- Well-positioned for conversion to medical office, professional services, or retail.
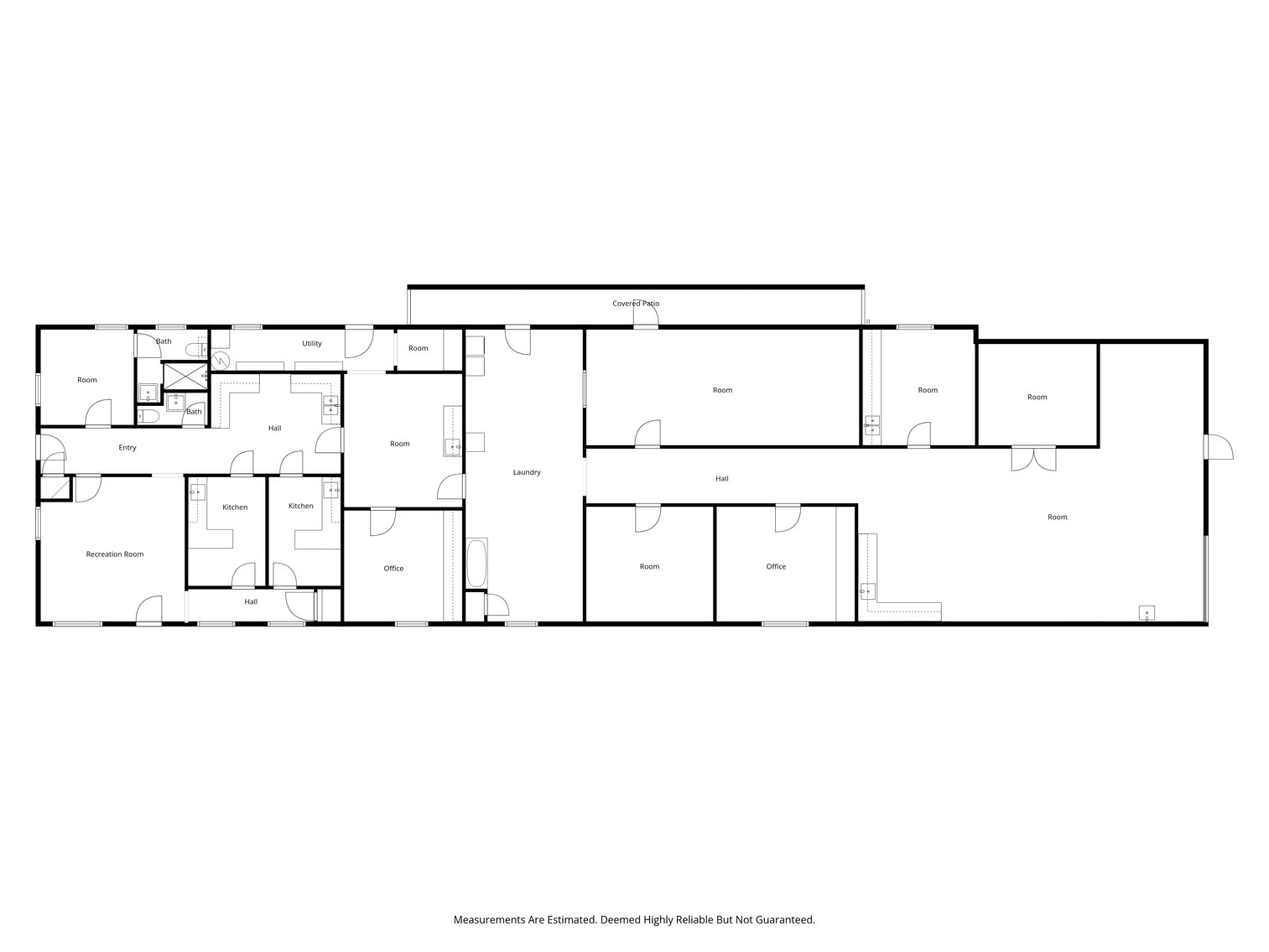
- Floor plan available in photos
- Located adjacent to the Kenbridge industrial corridor, 5 miles from Victoria, 12 miles from Blackstone, 18.5 miles from I-85, and a short drive to South Hill, Petersburg, Emporia & NC Line!!
- Tax Map: 033A5-0A-0-7 & 9; DB: 378-210; Zoning: B1; Yearly real estate taxes: $670 (county) & $895 (town); Building was constructed in 1991 and has brick exterior; $10,000 deposit (wired funds or certified check ONLY) is due immediately after confirmation of final bid and the balance due at closing within 30 days; WE GUARANTEE A FREE & CLEAR DEED
- Only $150,000 Starting Bid!!
FOR REALTORS: if you are currently working with a Realtor and want them to represent you, please have them CLICK HERE and complete their auction bidder representation form. In order for the Realtor to be compensated, broker forms must be completed and submitted no later than 6 AM on the day of the auction (5/27/26), and all terms adhered to.
ONLINE ONLY AUCTION TERMS:
Auction Terms and Conditions (for online-only auctions): In addition to the “General Terms and Conditions” referenced below, which apply to all of our services, the following Auction Terms and Conditions (“Auction Terms”) apply to the auction described above. Please review these Auction Terms and the General Terms and Conditions prior to participating or registering to participate in the auction, as they form a legally binding agreement between you and Nicholls Auction Marketing Group, Inc. (“Nicholls Auction”). Terms used but not defined in these Auction Terms will have the meanings ascribed to them in the General Terms and Conditions.
Contact the Auction Coordinator with Questions: Please contact the auction coordinator, Sid Smyth (434-955-0708), immediately if you need additional information.
Approval to Bid: Approval to bid is subject to completing an on-line bidder registration form and verification of the required earnest money deposit by auction personnel. The approval of online bidders is subject to confirmation by the auction coordinator.
Earnest Money; Deposit Payment: A $10,000 earnest money deposit will be required from the successful bidder and is due immediately after confirmation of Final Bid. If you are declared the successful bidder (or Buyer), the credit card that you provided at registration will be charged (and you agree Nichols Auction is authorized to charge your credit card) $500 toward your deposit. The remaining earnest money deposit of $9,500 must be in the form of cashier’s or certified check (United States Bank) or wire transfer to Nicholls Auction Marketing Group, Inc. and is due immediately. The entirety of the remaining balance of the final Purchase Price is due at closing within 30 days or as soon thereafter as seller’s closing documents are available. Buyer shall be responsible for all wire transfer fees. You may be asked to show proof of funds for the deposit (via text or email) prior to being approved to bid. The deposit is non-refundable. The deposit will be held in a non-interest bearing escrow account until settlement.
Closing: If you are the Buyer (as defined in the General Terms), you must sign (in person or electronically) all documents and contracts immediately after the acceptance of the Final Bid. Buyer will also be required to make an appointment with the closing agent to pay the balance of the purchase price and receive the deed to the property. Closing is to take place on or before 30 days from date of auction (unless prior arrangements have been made with and agreed to in writing by Nicholls Auction). Buyer acknowledges and agrees that time is of the essence. Buyer will pay for all of their closing costs associated with the transaction (please see the General Terms).
Real Estate Salesperson/Broker Acknowledgment: Although having a real estate agent real estate salesperson/broker is not required, if you are working with a real estate salesperson/broker, the real estate salesperson/broker must complete the Auction Bidder Representation Form available here: Auction Bidder Representation Form. In order for your real estate agent real estate salesperson/broker to be compensated, the Auction Bidder Representation Form must be completed and properly submitted no later than 6 a.m. on the day of the auction, which is 05/27/2026 (no exceptions). A registered real estate salesperson/broker can only represent one buyer at each auction event. If the auction at which you wish to bid has a live bidding component, your real estate salesperson/broker must attend the auction event in person regardless of whether you are bidding live in person on site or bidding online off site, and your real estate salesperson/broker must adhere to all terms.
Auction Premium: A 10% auction premium will be added to the Final Bid and will become part of the purchase price (10% Auction Premium Example: Bid Price: $100,000, Plus 10% Auction Premium of $10,000; Total Contract Price = $110,000). Auction Premium is non negotiable. Information is not Guaranteed; Sale is “AS IS” with all Faults: Please refer to the Property Information Packet for more details about this auction. All information and dimensions made available by Nicholls Auction concerning the property were derived from sources believed to be correct, but are not guaranteed to be correct. You agree to conduct your own investigation and inspection prior to bidding, and you agree to rely on your own information, judgment, and inspection of the property. Any reliance on any of the information or dimensions made available by Nicholls Auction concerning the property is solely at your risk. The property is being sold ’AS IS’ with any and all faults. Please review all information supplied and seek appropriate assistance prior to bidding. All announcements made on the day of the auction will take precedence over all previously provided material and any other oral statements made.
No Contingencies: This online auction, the sale of the property, and Buyer’s obligation to purchase the property are NOT contingent upon Buyer’s financing, the condition of the property, an appraisal, a survey (property lines), study period or inspections of any kind, or any other condition (except to the extent provided in the applicable contract documents or required by applicable law).
Contract for Sale of Real Property: This property is offered for sale by the seller under the specific terms provided in the “Real Estate Contract of Purchase” available at www.nichollsauction.com within the “DOCUMENTS” section. Please read and review the contract documents thoroughly prior to bidding on any property. If you have not read, reviewed and agree with the Real Estate Contract of Purchase, Do Not Bid!
Bidder Verification: The identity of all bidders will be and must be verified (via phone, email or text). Bidding rights are provisional, and if complete verification is not possible, Nicholls Auction Marketing Group, Inc. will reject your registration, and your ability to bid will be terminated.
Contract Package: At the close of the auction, and after seller confirmation, if you are the Buyer, Nicholls Auction will provide to you the contract package with all required contract documents for you to execute and return to Nicholls Auction. Contract packages will be sent by e-mail to Buyer, who must execute and hand deliver, email, fax or overnight mail the documents back to Nicholls Auction within 24 hours of receipt. If you are the Buyer and you do not execute and return all required contract documents with the remaining earnest money deposit within 24 hours of receipt, you will be in default and subject to legal action. This is a legally binding contract.
Administrative Fee: In the event you are the Buyer and you fail to submit the signed “Real Estate Contract of Purchase” and other contract documents and deposit earnest money as provided in these Auction Terms, you agree to pay Nicholls Auction (and you agree that Nicholls Auction is authorized to charge the credit card provided at registration) an administrative fee of $10,000. Additional default remedies are reserved by Nicholls Auction, and the seller, as provided in these Auction Terms, the General Terms and Conditions, and the “Real Estate Contract of Purchase” and related contract documents. All administrative fees are non-refundable.
Agency Disclosure: In all transactions, the auctioneer is acting as agent for the seller, not as buyer’s agent. Nicholls Auction Marketing Group, Inc. reserves the right to remove or cancel the bids and or bidding rights and privileges of any party deemed not to be in the best interest of the seller, at any time. At auctions with reserve, the seller and/or auctioneer reserves the right to bid.
Technical Issues: Neither Nicholls Auction nor any of its affiliates or vendors, shall be held responsible or liable for a missed bid or any failure of the software or other computer systems or technology used for online bidding to function properly for any reason. The online bidding and virtual auction will begin to close on Wednesday, May 27, 2026 @ 12pm Noon (Eastern). If there is bidding in the last few minutes before the auction closes, extended bidding will commence. If there are no bids within 2-3 minutes, the auction will end. This procedure prohibits any last second “sniping” from taking place. In the unfortunate event of a DDOS attack, server attack, shut down, internet disruption, or technological problem, Nicholls Auction reserves the right, but is not required, to change the bid closing deadline. To minimize the chance of being affected by internet or software issues, please use the “Max Bid” feature.
General Terms and Conditions also Apply: Please review our General Terms and Conditions (the “General Terms”) found here: “General Terms and Conditions”, which form a part of your agreement with us and govern your access to or use of any of our products or services, including, without limitation, our auctions, our website and our mobile applications.
PUBLIC REAL ESTATE AUCTION — ONLINE ONLY
AUCTION DETAILS
- Format: Online bidding only
- Bidding closes: Wednesday, May 27, 2026 @ 12:00 PM Noon (Eastern)
- Starting bid: $150,000
- Contact: Sid Smyth — 434-955-0708
PROPERTY TOURS
- Wednesday, May 6, 2026 | 12:00–1:00 PM
- Saturday, May 9, 2026 | 12:00–1:00 PM
- Friday, May 15, 2026 | 12:00–1:00 PM
- Inspectors/contractors welcome
PROPERTY OVERVIEW
- Type: Commercial brick building
- Size: 4,125 +/- sq ft on 1.25 +/- acres
- Address/Location: Lea Rd. (Highway 40 West), Lunenburg County, VA
- Road frontage: 240 +/- ft
- Zone: Enterprise Zone / B1 Zoning
- Year built: 1991
- Exterior: Brick
TAX & LEGAL INFO
- Tax Map: 033A5-0A-0-7 & 9
- Deed Book: DB 378-210
- Annual real estate taxes: $670 (county) + $895 (town)
PROPERTY FEATURES
- Previously operated as a veterinary clinic; ready for immediate reuse
- Layout includes exam rooms, treatment areas, and administrative spaces
- Fenced area previously used for equestrian short-term holding and treatment
- No other veterinary clinic currently in the county
- Additional land available for parking, storage, or future expansion
- All town utilities connected
- High-speed internet available
- Floor plan available in listing photos
POTENTIAL USES
- Veterinary clinic (turnkey reuse)
- Medical office
- Professional services
- Retail
LOCATION
- 1.3 miles from Main Street Kenbridge
- 5 miles from Victoria
- 12 miles from Blackstone
- 18.5 miles from I-85
- Short drive to South Hill, Petersburg, Emporia, and NC state line
TERMS & CONDITIONS
- Deposit: $10,000 due immediately after final bid confirmation (wired funds or certified check ONLY)
- Balance due: Within 30 days of closing
- Deed: Free & clear guaranteed
FOR REALTORS
- Broker representation forms must be submitted no later than 6:00 AM on auction day (May 27, 2026)
- All broker terms must be adhered to for compensation eligibility

